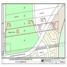
Clarkway Drive Brampton Ontario L6P 0V4
Property
Details
Property Type:
Commercial
Listing Type:
For Sale
Listing ID:
W11896070
Price:
$23,500,000
Year Built:
Lot Area:
0 Sqft
Lot Depth:
2241.54
Ref ID:
W11896070
Dir / Cross St:
Clarkway/ Countryside
Status:
Active
Tax Year:
2024
Property Type:
Land
Property Sub Category:
Vacant land
Pricing
History
Taxes:
$2,269
Last Status
Original Price:
$0
Sold Price:
$0
Addl Monthly Fees:
$0
Address
Country:
US
State:
ON
County:
Peel
City:
Brampton
Neighbourhood:
Toronto Gore Rural Estate
Zipcode:
L6P 0V4
Community:
Toronto Gore Rural Estate
Street:
Clarkway
Street Number:
Street Suffix:
Drive
Longitude:
W80° 18' 46.7''
Latitude:
N43° 48' 26.4''
Brokerage
Possession Remarks:
Flex / TBA
Listing Entry Date:
18/12/2024 15:54:36
Office Name:
TRIPLE NET REALTY INC.
Agent
Info
No Image
Andrew Mcloughlin
info@realestatewithandrew.ca