New rentals -- Page 342

For Rent
$150
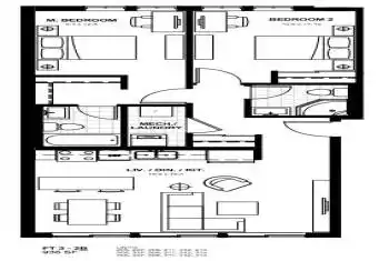
5180 Yonge Street Unit# Parking P4 71, Toronto C07, Ontario M2N 0K5
37,787 Listings