For Sale -- Page 7

For Sale
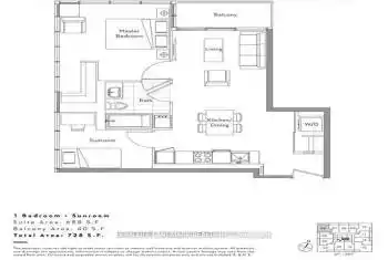
$555,750
21 Iceboat Terrace Unit# 3610, Toronto C01, Ontario M5V 4A9
  • 2Beds
  • 1Baths
67,520 Listings